Tagasi otsingusse

Tallinn, Kesklinn, Pirita tee 28a

Apartment for rent

Tallinn, Kesklinn, Pirita tee 28a

Apartment for rent

2 000
  • Objekti tüüp
    Apartment for rent
  • Hoone tüüp
    Korterelamu
  • Kogupindala
    150.80 m²
  • Tubade arv
    4
  • Korrus
    12 / 12
  • Kütte tüüp
    Gaasiküte
  • Viide

Objektist


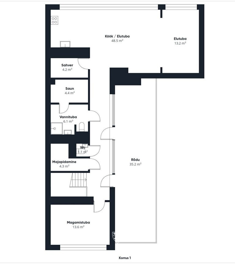
Esinduslik korter Kadrioru ja Pirita piiril, mere ääres.
Viimase korruse korter paikneb läbi kahe korruse. Kaunid vaated merele ja linnale.

Alumisel, sissepääsukorrusel - avar esik suure garderoobikapiga, kaks magamistuba ja vannituba; ülemisel korrusel - avatud köögiga elutuba 61,7 m², köök varustatud kaasaegse mööbli -ja tehnikaga, saunaga vannituba, peamagamistuba, eraldi tualettruum, majapidamisruum pesumasinaga, panipaik, terrass 32,5 m². Korteris on konditsioneerid igas toas.

Korteri juurde kuulub kaks autokohta garaazhis ja panipaik. Elanike kasutuses on hästi varustatud jõusaal (lisatasu eest), laste mänguväljak ja külaliste parkla maja ees.

Jalutuskäigu kaugusel on nii Kadrioru park kui ka Pirita rand, Tallinna lauluväljak ning rannapromenaad, jalutus- ja rattateed.
Väga hea bussiühendus nii Piritaga kui ka südalinnaga.
Üürile lisanduvad igakuised kommunaalmaksed.
Tagatisraha 1 kuu üürisumma, vahendustasu 1 kuu üür + km.

Sarnased objektid

Kõik objektid Kõik
+

Mail sent!

This site is registered on wpml.org as a development site. Switch to a production site key to remove this banner.