Tagasi otsingusse

Tallinn, Haabersti, Tagala 10

Korteri müük

Tallinn, Haabersti, Tagala 10

Korteri müük

235 000
3 310 /m²

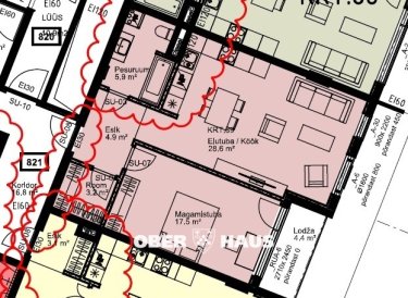
Objektist

Müüa valgusküllane ja stiilne 3-toaline korter. Kodu, kus iga detail on hoolikalt planeeritud, et pakkuda mugavust, kvaliteeti ja rahulikku elukeskkonda.

Korteri peamised eelised:

-Privaatne avatud terrass otse eluruumist – justkui oma isiklik siseõu, ideaalne hommikukohviks.
.Parkimiskoht otse terrassi kõrval – maksimaalne mugavus ja turvalisus.
-Kaks sanitaarruumi, kaasaegne viimistlus, uus elektri- ja torustikusüsteem ning vesipõrandaküte – stabiilselt soe ja mõnus kodu igal aastaajal.
-Müüakse koos kogu mööbli ja tehnikaga (sh sisseehitatud köögimööbel, Electroluxi kodumasinad, pesumasin-kuivati, naturaalne parkett).
-Hinna sees panipaik ja parkimiskoht.

Planeering:

-Avatud köögiga avar elutuba
-Kaks eraldi magamistuba
-WC ja eraldi duširuum
-Funktsionaalne garderoob/panipaik

Maja ja ümbrus:

-2020. aastal ehitatud kaasaegne hoone
-Kaunis ja hoolitsetud haljastus ning turvaline sisehoov
-Videovalvega ja tõkkepuuga suletud territoorium
-Maja juures tasuta parkimine
-Hästi toimiv haldus ja rahulikud naabrid

Asukoht ja ühendused:

-Lühikese jalutuskäigu kaugusel Harku järv – ideaalne sportimiseks ja puhkamiseks
-Kiire ja mugav ühendus kesklinnaga
-Korras teed ja hea ühistranspordiühendus

See korter on suurepärane valik neile, kes soovivad kohe sisse kolida!

Tule vaatama – Sinu uus kodu võib olla vaid ühe sammu kaugusel!

Sarnased objektid

Kõik objektid Kõik
+

Mail sent!

This site is registered on wpml.org as a development site. Switch to a production site key to remove this banner.